Beschrijving
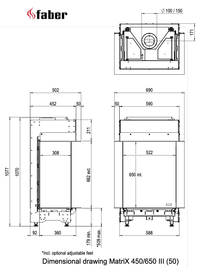
Faber Matrix 450/650 III (driezijdig)
Faber gooit de markt op z’n kop met een nieuwe lijn modulair op te bouwen haarden. Naar eigen wens aan te passen dus. Kies uw gewenste kader, achterwand en bijvoorbeeld ontspiegeld glas. Kies voor de Symbio lichtmodule en maak gebruik van de comfortverhogende ITC App module.
Faber Logburner 2.0
In 2001 kwam Faber als eerste met de zogenaamde logburner in hun gashaarden. De logburner zorgt ervoor dat de vlammen echt uit het hout lijken te komen. Met de nieuwe Logburner 2.0 is Faber de concurrentie weer een stap voor! Een nog realistischer houtvuurbeleving door vijf branders en de ecoboostfunctie. Combineer dat met het ontspiegelde glas en niemand gelooft u meer als u zegt dat het om een gasvuur gaat.
Symbio lichtmodule van Faber
Heeft u de haard zacht staan? Met de Symbio optie van Faber kunt u het gloeibed (LED) inschakelen en lijkt het net alsof u een berg gloeiende kolen in de kachel heeft liggen met af en toe een vlammetje. Net echt!
EcoWave
Het EcoWave systeem van Faber zorgt voor een nog natuurlijker vlambeeld. De brander kan varieren in hoogte van het vuur. Zo brand de haard bijvoorbeeld op 50% van het vermogen maar doet dat door de ene keer op 30% te branden en de andere keer op 70% etc.
Deze optie zit op de ITC-App. Dit is een module waarmee u uw haard in uw WiFi netwerk kunt ‘hangen’. De haard is dan volledig te bedienen door middel van een APP (IOS en Android) en de Wave is dan helemaal naar eigen wensen in te stellen.
De Faber Matrix brandend zien?
Wilt u de Faber Matrix brandend zien? Dan ben u van harte welkom in ons Experience Center. Hier hebben wij meerdere gesloten gashaarden brandend opgesteld staan.
Product downloads







Beoordelingen
Er zijn nog geen beoordelingen.